W dalszej części artykułu przedstawimy krok po kroku jak zrealizować instalację centralnego ogrzewania, zwracając uwagę na najważniejsze aspekty, które mogą wpłynąć na efektywność systemu grzewczego. Dzięki temu dowiesz się, jak uniknąć typowych pułapek, które mogą prowadzić do problemów z ogrzewaniem w przyszłości.
Najistotniejsze informacje:
- Dokładne obliczenia zapotrzebowania na ciepło są kluczowe dla efektywności systemu.
- Wybór odpowiednich materiałów, takich jak rury PEX-Al-PEX i grzejniki, ma znaczenie dla wydajności instalacji.
- Montaż powinien zaczynać się od trasowania rurociągów oraz odpowiedniego umiejscowienia kotła i grzejników.
- Przeprowadzenie prób szczelności jest niezbędne dla zapewnienia bezpieczeństwa systemu grzewczego.
- Znajomość przepisów prawnych oraz pomoc specjalisty mogą zapobiec problemom związanym z instalacją.
Jak zaplanować instalację centralnego ogrzewania w domu
Planowanie instalacji centralnego ogrzewania jest kluczowym krokiem, który pozwala na stworzenie efektywnego systemu grzewczego w każdym domu. Zanim przystąpimy do montażu, musimy dokładnie ocenić wymagania cieplne budynku. Odpowiednie obliczenia pomogą określić, ile energii cieplnej będzie potrzebne do komfortowego ogrzewania wszystkich pomieszczeń. Pamiętajmy, że nieodpowiednie oszacowanie zapotrzebowania na ciepło może prowadzić do problemów z efektywnością systemu oraz wyższych kosztów eksploatacji.
Wybór odpowiedniego systemu grzewczego jest równie istotny. Na rynku dostępne są różne rozwiązania, jak kotły gazowe, pomp ciepła czy systemy elektryczne. Każde z nich ma swoje zalety i wady, które należy rozważyć w kontekście specyfiki budynku oraz oczekiwań mieszkańców. Dobrze dobrany system nie tylko zapewnia komfort cieplny, ale także wpływa na oszczędności w rachunkach za energię.
Określenie wymagań cieplnych budynku dla efektywności
Aby określić wymagania cieplne budynku, należy wziąć pod uwagę kilka kluczowych czynników. Po pierwsze, istotna jest powierzchnia użytkowa, ponieważ średnio przyjmuje się, że na każdy metr kwadratowy przypada około 70-100 W zapotrzebowania na ciepło. Warto również zwrócić uwagę na jakość izolacji termicznej, która może znacząco wpłynąć na efektywność ogrzewania. Budynki o lepszej izolacji wymagają mniejszej ilości energii do ogrzewania, co przekłada się na niższe koszty eksploatacyjne.
- Obliczenia zapotrzebowania na ciepło powinny uwzględniać zarówno powierzchnię, jak i izolację budynku.
- W przypadku starych budynków, warto rozważyć dodatkowe ocieplenie, aby poprawić efektywność energetyczną.
- Współpraca z projektantem może pomóc w dokładnym określeniu wymagań cieplnych.
Wybór odpowiedniego systemu grzewczego dla Twoich potrzeb
Wybór odpowiedniego systemu grzewczego jest kluczowy dla efektywności centralnego ogrzewania w Twoim domu. Na rynku dostępne są różne opcje, takie jak kotły gazowe, kotły elektryczne oraz pompy ciepła. Kotły gazowe są popularne ze względu na ich efektywność oraz niższe koszty eksploatacji, ale wymagają dostępu do sieci gazowej. Z kolei kotły elektryczne są łatwe w instalacji i nie wymagają dodatkowych przyłączy, jednak ich użytkowanie może być droższe w dłuższej perspektywie czasowej.
Pompy ciepła to nowoczesne rozwiązanie, które wykorzystuje energię z otoczenia do ogrzewania budynku. Choć ich koszt początkowy jest wyższy, to w dłuższym czasie mogą przynieść znaczne oszczędności. Warto również rozważyć systemy hybrydowe, łączące różne źródła ciepła, co pozwala na optymalne wykorzystanie energii. Kluczowe jest, aby dostosować wybór systemu do indywidualnych potrzeb oraz specyfiki budynku.
Jakie materiały są potrzebne do montażu centralnego ogrzewania
Do prawidłowej instalacji centralnego ogrzewania potrzebne będą różne materiały i narzędzia. Wśród podstawowych materiałów znajdują się rury PEX-Al-PEX, które są elastyczne i odporne na korozję, a także grzejniki, które zapewnią odpowiednie ogrzewanie pomieszczeń. Dodatkowo, niezbędne będą zawory termostatyczne, pompa obiegowa, rozdzielacz z zaworami oraz różne złączki i kolanka, które umożliwią prawidłowe połączenie wszystkich elementów systemu.
Ważne jest również posiadanie odpowiednich narzędzi, takich jak zaciskarka do rur PEX, nożyce do rur, kalibrator, poziomnica, miara, wiertarka udarna oraz klucze hydrauliczne. Te narzędzia ułatwią montaż i zapewnią prawidłowe połączenia. Przygotowanie odpowiednich materiałów i narzędzi to kluczowy krok w procesie instalacji, który pozwoli uniknąć niepotrzebnych problemów w dalszych etapach.
| Materiał | Specyfikacja | Przykłady marek |
| Rury PEX-Al-PEX | Średnica 16-32 mm, elastyczne | Wavin, Rehau |
| Grzejniki | Typ płytowy, różne wymiary | Purmo, Kermi |
| Pompa obiegowa | Wydajność 5-25 l/min | Wilo, Grundfos |
Lista niezbędnych materiałów i narzędzi do instalacji
Aby skutecznie przeprowadzić instalację centralnego ogrzewania, konieczne jest zgromadzenie odpowiednich materiałów i narzędzi. Poniżej znajduje się lista kluczowych elementów, które będą potrzebne do montażu. Zastosowanie odpowiednich materiałów zapewni nie tylko trwałość systemu, ale również jego efektywność. Warto zainwestować w sprawdzone produkty, aby uniknąć problemów w przyszłości.
| Materiał | Specyfikacja | Przykłady marek |
| Rury PEX-Al-PEX | Średnica 16-32 mm, elastyczne, odporne na korozję | Wavin, Rehau |
| Grzejniki | Typ płytowy, różne wymiary, odpowiednie do różnych pomieszczeń | Purmo, Kermi |
| Pompa obiegowa | Wydajność 5-25 l/min, cicha praca | Wilo, Grundfos |
| Rozdzielacz z zaworami | Umożliwia równomierne rozdzielenie ciepła | Viega, Oventrop |
| Zawory termostatyczne | Regulacja temperatury w pomieszczeniach | Danfoss, Honeywell |
Jakie grzejniki i kotły wybrać dla optymalnej wydajności
Wybór odpowiednich grzejników i kotłów jest kluczowy dla uzyskania optymalnej wydajności centralnego ogrzewania. Grzejniki powinny być dostosowane do wielkości pomieszczeń oraz zapotrzebowania na ciepło. Na przykład, w dużych pokojach warto zainwestować w grzejniki o większej mocy, aby zapewnić równomierne ogrzewanie. Kotły gazowe są zazwyczaj bardziej efektywne, ale warto także rozważyć kotły na biomasę lub pompy ciepła, które mogą być bardziej ekologiczne i ekonomiczne w dłuższej perspektywie.
Czytaj więcej: Przy jakiej temperaturze należy włączyć ogrzewanie, aby uniknąć zimna?
Krok po kroku: montaż centralnego ogrzewania w praktyce
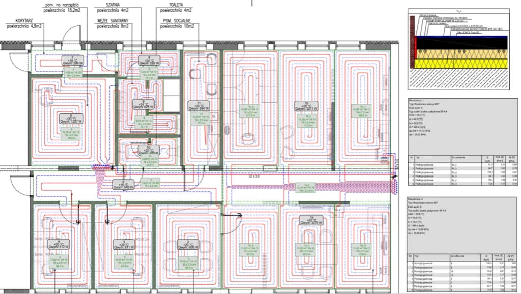
Instalacja centralnego ogrzewania wymaga staranności i dokładności. Proces montażu zaczyna się od wytyczenia tras rurociągów, co pozwala na właściwe zaplanowanie układu systemu. Następnie należy zainstalować kocioł w kotłowni oraz rozdzielacz w szafce, a rury układać zgodnie z wcześniej przygotowanym projektem, zachowując minimalny spadek 3 mm na metr długości, co zapewnia prawidłowe odpowietrzenie. Grzejniki montuje się na odpowiedniej wysokości, zazwyczaj 10-15 cm nad podłogą, z zachowaniem odległości 10 cm od parapetu. Ostatnim krokiem jest podłączenie wszystkich elementów, co przygotowuje system do dalszych prac.
Podczas montażu mogą wystąpić różne wyzwania. Często zdarza się, że rury nie pasują idealnie do zaplanowanej trasy, co może wymagać dodatkowych korekt. Warto również zwrócić uwagę na odpowiednie uszczelnienie połączeń, aby uniknąć wycieków. Problemy mogą pojawić się także przy montażu grzejników, gdzie niewłaściwe umiejscowienie może prowadzić do nierównomiernego rozkładu ciepła w pomieszczeniach. Dlatego kluczowe jest, aby dokładnie przestrzegać wszystkich kroków i planów, co pozwoli na sprawne działanie systemu grzewczego.
Jak poprawnie wykonać trasowanie rurociągów i montaż
Trasowanie rurociągów to jeden z najważniejszych etapów w instalacji centralnego ogrzewania. Najlepiej jest rozpocząć od wytyczenia linii, które będą wskazywały, gdzie rury będą prowadzone. Użycie poziomnicy i miary pomoże zapewnić, że rury będą prowadzone w sposób prosty i zgodny z planem. Rury powinny być prowadzone w bruzdach ściennych lub pod warstwą izolacji podłogowej, co chroni je przed uszkodzeniami. Ważne jest, aby zachować minimalny spadek, który umożliwi prawidłowe odpowietrzenie systemu, a także upewnić się, że wszystkie połączenia są dobrze uszczelnione.- Użyj poziomnicy do kontrolowania prostoliniowości tras rurociągów.
- Rury prowadź w bruzdach, aby zapobiec uszkodzeniom mechanicznym.
- Utrzymuj minimalny spadek 3 mm na metr, aby zapewnić prawidłowe odpowietrzenie.
Podłączanie kotła i grzejników - kluczowe wskazówki
Podłączanie kotła oraz grzejników jest kluczowym etapem w instalacji centralnego ogrzewania. Ważne jest, aby upewnić się, że wszystkie połączenia są wykonane prawidłowo, aby uniknąć wycieków. Zawsze należy stosować odpowiednie uszczelki i złączki, które zapewnią szczelność. Po zakończeniu podłączania, wykonaj próbę ciśnieniową, aby sprawdzić, czy system jest szczelny. Zaleca się, aby ciśnienie w systemie wynosiło około 1,5-2 bary, co zapewnia prawidłowe działanie kotła i grzejników.
Bezpieczeństwo i legalność instalacji centralnego ogrzewania
Bezpieczeństwo podczas instalacji centralnego ogrzewania jest kluczowe. Należy przestrzegać wszystkich obowiązujących norm i standardów, które zapewniają bezpieczeństwo użytkowania systemu grzewczego. Warto zainwestować w odpowiednie zabezpieczenia, takie jak zawory bezpieczeństwa i automatyczne systemy wyłączania, które mogą chronić przed awariami. Regularne przeglądy techniczne oraz konserwacja systemu również przyczyniają się do jego bezpieczeństwa i długowieczności.
Oprócz bezpieczeństwa, istnieją również przepisy prawne, które regulują instalację systemów grzewczych. Każda instalacja musi być zgłoszona do odpowiednich organów oraz posiadać dokumentację techniczną zatwierdzoną przez uprawnionego projektanta. W przypadku kotłów gazowych, konieczne jest uzyskanie dodatkowych pozwoleń na przyłączenie do sieci gazowej. Niezastosowanie się do tych przepisów może prowadzić do poważnych konsekwencji prawnych oraz problemów z ubezpieczeniem budynku.
Jakie przepisy prawne obowiązują przy instalacji
W Polsce, instalacja centralnego ogrzewania podlega określonym przepisom prawnym. Przede wszystkim, każda instalacja musi być zgodna z ustawą o budownictwie oraz innymi regulacjami dotyczącymi bezpieczeństwa budynków. Niezbędne jest uzyskanie odpowiednich pozwoleń na budowę oraz zgłoszenie instalacji do lokalnego urzędów. Dodatkowo, w przypadku kotłów gazowych, wymagane jest spełnienie norm dotyczących jakości i bezpieczeństwa, co często wiąże się z koniecznością przeprowadzenia dodatkowych badań i audytów.
Kiedy warto skorzystać z pomocy specjalisty w instalacji
Choć wiele osób decyduje się na samodzielne wykonanie instalacji centralnego ogrzewania, istnieją sytuacje, w których warto skorzystać z pomocy specjalisty. Złożoność niektórych systemów grzewczych, szczególnie tych opartych na kotłach gazowych czy pompach ciepła, może wymagać specjalistycznej wiedzy i doświadczenia. Dodatkowo, jeśli nie masz pewności co do obliczeń zapotrzebowania na ciepło lub nie czujesz się komfortowo z pracami hydraulicznymi, pomoc fachowca może zaoszczędzić czas i pieniądze w dłuższej perspektywie. Specjalista także zapewni, że instalacja będzie zgodna z obowiązującymi przepisami prawnymi, co jest kluczowe dla bezpieczeństwa użytkowania systemu.
Jak przeprowadzić testy szczelności i uruchomić system
Testy szczelności są kluczowym elementem weryfikacji poprawności instalacji centralnego ogrzewania. Po zakończeniu montażu, należy przeprowadzić testy, aby upewnić się, że nie ma wycieków. Pierwsza próba powinna być przeprowadzona na zimno, przy ciśnieniu około 4 bar, i trwać co najmniej 30 minut. Druga próba, na gorąco, sprawdza szczelność przy maksymalnej temperaturze czynnika grzewczego. Tylko po pozytywnych wynikach testów można przejść do uruchomienia systemu.
Uruchomienie systemu polega na napełnieniu go wodą i odpowietrzeniu. Ważne jest, aby napełniać system stopniowo, unikając nagłych skoków ciśnienia. Po napełnieniu, należy stopniowo podnosić temperaturę wody, aby sprawdzić, czy wszystkie elementy działają poprawnie. Regularne monitorowanie systemu w pierwszych dniach użytkowania pomoże szybko wykryć ewentualne problemy.
Dlaczego testy szczelności są kluczowe dla bezpieczeństwa
Testy szczelności są niezwykle ważne, ponieważ zapewniają, że system centralnego ogrzewania jest bezpieczny w użytkowaniu. Wyciek wody lub gazu może prowadzić do poważnych awarii, a nawet zagrożeń dla zdrowia i życia. Przeprowadzenie testów pozwala na wczesne wykrycie problemów, co może zaoszczędzić wiele kosztów związanych z naprawami. Dodatkowo, spełnianie norm dotyczących szczelności jest często wymagane przez przepisy prawne, co czyni testy nie tylko praktyką, ale i obowiązkiem.
Jak przygotować system do pierwszego uruchomienia
Przygotowanie systemu do pierwszego uruchomienia wymaga staranności i uwagi. Po napełnieniu systemu wodą, ważne jest, aby dokładnie odpowietrzyć wszystkie grzejniki, co zapewni ich prawidłowe działanie. Należy również sprawdzić, czy wszystkie zawory są prawidłowo ustawione oraz czy nie ma wycieków. Po tych czynnościach można rozpocząć powolne podnoszenie temperatury wody w systemie, co pozwoli na stopniowe wprowadzenie go w pełne działanie. Regularne monitorowanie systemu w pierwszych dniach użytkowania jest kluczowe dla zapewnienia jego efektywności i bezpieczeństwa.
Jak zintegrować system centralnego ogrzewania z OZE
W obliczu rosnącej potrzeby efektywności energetycznej oraz ochrony środowiska, coraz więcej osób rozważa integrację centralnego ogrzewania z odnawialnymi źródłami energii (OZE). Jednym z najpopularniejszych rozwiązań jest połączenie kotła gazowego z pompą ciepła lub panelami słonecznymi. Taki system hybrydowy pozwala na maksymalne wykorzystanie energii odnawialnej, co przekłada się na niższe rachunki za ogrzewanie oraz mniejszy wpływ na środowisko. Warto również rozważyć zastosowanie inteligentnych systemów zarządzania energią, które optymalizują pracę całego systemu grzewczego, dostosowując go do aktualnych potrzeb użytkowników oraz warunków atmosferycznych.
Integracja z OZE nie tylko zwiększa efektywność energetyczną, ale również może przyczynić się do uzyskania dotacji lub ulg podatkowych na instalację systemów grzewczych. Warto skonsultować się z ekspertem w dziedzinie OZE, aby dostosować system do specyfiki budynku oraz potrzeb mieszkańców. Dzięki temu można nie tylko zminimalizować koszty eksploatacji, ale także przyczynić się do ochrony środowiska poprzez redukcję emisji CO2.






